Introducing the Armagh Type A2 Cabin, featuring the same clever and space-efficient design as the Armagh Type A, with the added benefit of an extended roof overhang. This overhang shelters both the entrance and outdoor storage area, offering extra protection from the elements and enhancing the overall functionality of the cabin.
The overhang also allows for the option to add decking, creating an ideal space for outdoor seating or relaxing under the covered area, perfect for enjoying the fresh air in any weather.
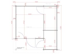
Inside, the cabin retains the same open-plan layout as the Armagh Type A, making it ideal for a Murphy bed or pullout bed. This allows you to maximise space during the day by transforming the sleeping area into a living or working zone. It also includes room for a compact kitchen, a private bathroom, and an outdoor storage room for your convenience.
The Armagh Type A2 Cabin offers the same stylish and practical design with the added benefit of a roof overhang for additional outdoor comfort. Get in touch with our sales team to explore customisation options, including adding an additional decking, to make this cabin your perfect space!
The Armagh A2 log cabin is available in the following sizes:
If you have any further queries or if this model is not exactly what you are looking for, we specialize in bespoke cabins and can create a cabin from your own custom design! Contact us today or call us on 01 564 1964, we look forward to helping you.









Reviews
There are no reviews yet.