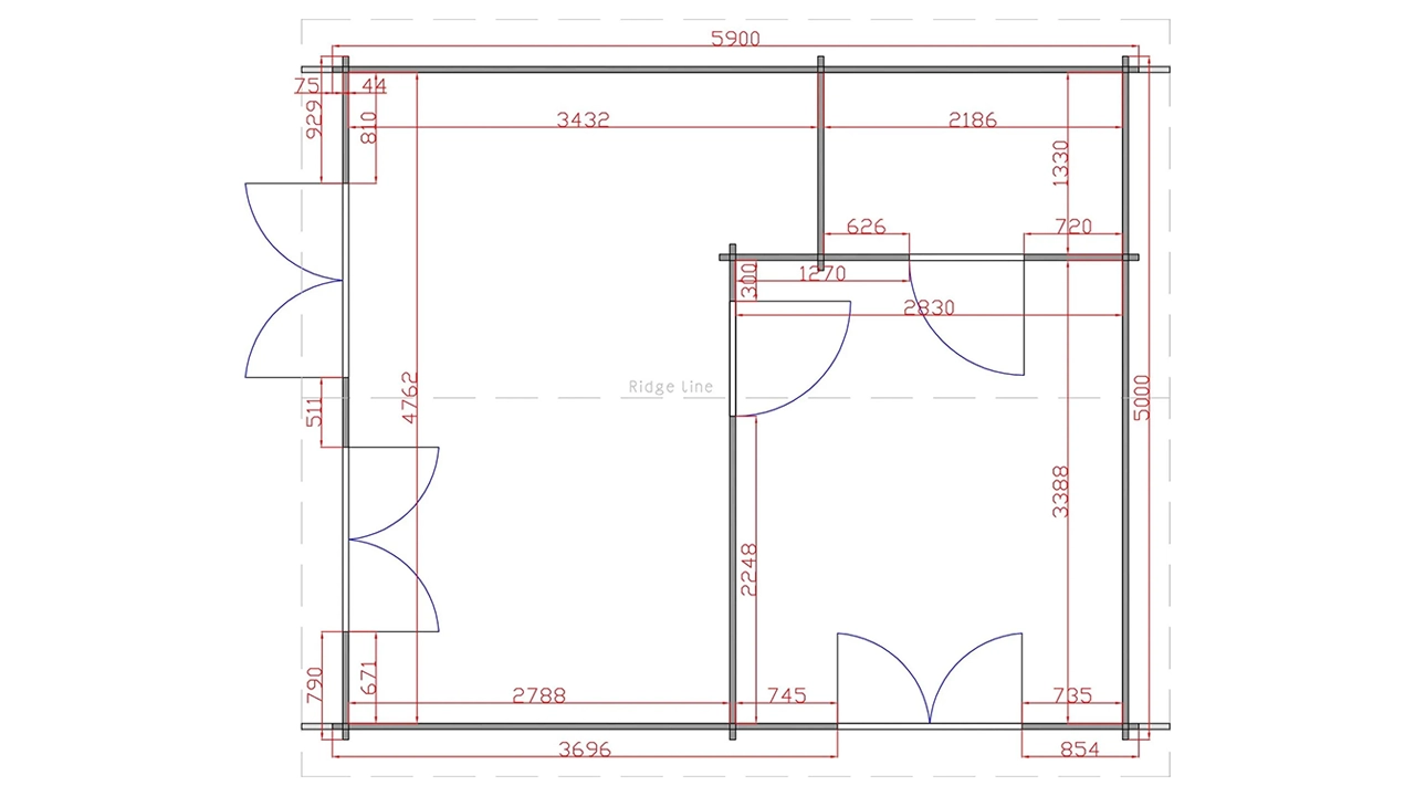
The One Bed A2 log cabin is expertly designed for small-space living. Measuring 5m x 5.9m, it offers a well-planned internal layout without compromising on space. This cabin is similar to our One Bed A style but features an entrance on the left side, creating a narrower front-facing. If this door position doesn’t suit your needs, you can opt for the One Bed A style cabin.
The layout includes a spacious double bedroom with an en-suite bathroom and a comfortably sized open-plan kitchen and living area. The cabin is constructed with top-quality Scandinavian timber and features an insulated steel roof, along with our White uPVC range of doors and windows equipped with toughened double glazing, ensuring warmth and cosiness throughout the winter.
This bright and spacious cabin offers plenty of opportunities to customise the interior to match your personal style. We can also provide an optional turnkey package that includes electrical work, plumbing, and a full kitchen and bathroom fit-out.
The One Bed A2 is the perfect home for two adults to live in year-round!
If you have any further queries or if this model is not exactly what you are looking for, we specialize in bespoke cabins and can create a cabin from your own custom design! Contact us today or call us on 01 564 1964, we look forward to helping you.





















Reviews
There are no reviews yet.