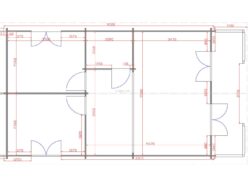
Our most popular 2-bed log cabin/log home model is the 2 bed Type A cabin. This design boasts an open-plan living/kitchen area, providing a spacious and inviting atmosphere for everyday living. Featuring two generously sized double bedrooms, this cabin offers ample space.
Constructed with quality timber, a durable roof, sturdy hinges, and toughened glass double glazing, this cabin is built to withstand the test of time. The included 1.5m (4.9ft) veranda adds charm to your log home, offering protection from the Irish elements while providing a delightful outdoor space for enjoying sunny days or sipping morning coffee.
The interior is thoughtfully designed to accommodate a full-sized kitchen and allow plenty of space for the living area, ensuring comfort and convenience for everyday living.
If you have any further queries or if this model is not exactly what you are looking for, we specialize in bespoke cabins and can create a cabin from your own custom design! Contact us today or call us on 01 564 1964, we look forward to helping you.
View the virtual tour of our Two Bed A Log Cabin in our Blessington Showroom here:



















Reviews
There are no reviews yet.