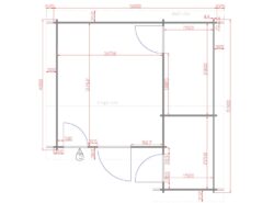
Introducing the Armagh Type A Cabin, a compact and practical space designed for those who value independence while still living at home. Ideal for students or anyone looking for a private space, this open-plan cabin offers everything you need in a compact design.
The layout is perfectly suited for a Murphy bed or a pullout bed. This allows you to transform your sleeping area into a spacious living or study area during the day, making it an ideal choice for students who need space to focus on their studies while still having room to relax and socialise.
The cabin also offers space for a compact kitchen, perfect for preparing meals while keeping the living area open and airy. It includes a separate bathroom for convenience and privacy, along with an outdoor storage room to keep your belongings neatly organised and out of the way.
Whether you’re a student looking for your own space or someone who wants a cosy, practical living area, the Armagh Type A Cabin is perfect. Reach out to our sales team to explore customisation options and see how this cabin can meet your needs!
The Armagh A log cabin is available in the following sizes:
If you have any further queries or if this model is not exactly what you are looking for, we specialize in bespoke cabins and can create a cabin from your own custom design! Contact us today or call us on 01 564 1964, we look forward to helping you.










Reviews
There are no reviews yet.