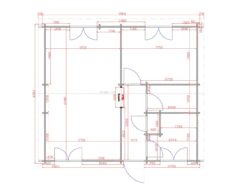
Our innovative 2-bed log cabin/log home was inspired by IKEA’s 2-bed apartment range. This compact design is tailored for those with limited space who still desire the comfort of a two-bedroom log home.
Featuring a single and double bedroom, this log home maximizes every inch of available space without compromising on comfort. The hallway has an attractive built-in wardrobe/cloakroom, adding practicality to the layout.
Our architect has integrated a full-sized kitchen and dining table, catering to the needs of a small family.
If you have any further queries or if this model is not exactly what you are looking for, we specialize in bespoke cabins and can create a cabin from your own custom design! Contact us today or call us on 01 564 1964, we look forward to helping you.
View the virtual tour of our Two Bed B Log Cabin in our Blessington Showroom here:



















Reviews
There are no reviews yet.